Route
Bouw
Woningen
Begane grond
Appartement
Penthouse
Foto’s
|
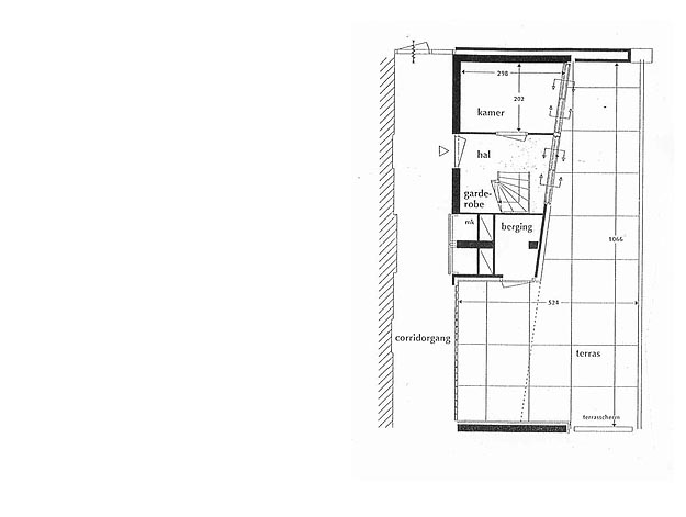
Penthouse
De penthouses hebben hun ingang op de vijfde etage. De hal verschaft
toegang tot het royale terras en een werkkamer. De trap naar boven gaat
naar de andere ruimtes van het appartement: standaard met een grote living,
twee
badkamers, open tussenkamer en twee slaapeenheden.

Entree

Appartement
|
|